“碳中和、碳達峰”是全球各國的共識,目前已有數十個國家和地區提出了“零碳”或“碳中和”的氣候目標,Energy & Climate Intelligence Unit 的凈零排放跟蹤表統計了各個國家進展情況,包括:已實現的2個國家,已立法的6個國家,處于立法中狀態的包括歐盟(作為整體)和其他3個國家。

據水泥人網了解,越來越多的國家正在將其轉化為國家戰略,提出了無碳的愿景。而水泥工業一直以來被認為是高污染、高排放的行業,也是各國重點治理的行業之一。因此,水泥行業的超低排放,凈零排放一直以來也是國內外各大水泥企業共同努力的方向。
為達到這一共識,水泥廠、水泥設備以及各大技術研發企業,都在奮力前行,目前國內水泥熟料節能降氮燒成技術已經非常成熟,很多水泥企業也已經完成超低排放改造工程。與此同時,為了幫助國外水泥企業解決排放問題,淄博科邦熱工科技有限公司(以下簡稱“科邦”)已將其研發的“水泥熟料節能降氮燒成技術”輸出國外,該技術正式在國外一條新建設的水泥廠的設計中應用。
據科邦高級工程師郭紅軍介紹,采用這項技術的水泥廠,設計生產規模為1800t/d,配備Φ3.5*54米回轉窯,窯尾采用帶分解爐的五級旋風預熱器,采用升級型的第四代步進式篦冷機,窯頭采用節能型低氮燃燒器。燒成系統主要設備配置情況見下表:

在這條生產線的燒成系統中,采用了多項具有我國獨有知識產權的工藝和設備技術。這些技術組合應用后,燒成系統具有五項國際先進工藝特征的技術:在窯尾預熱預分解系統中,采用了“分解爐外循環技術”和“分級燃燒分解爐”技術;窯頭采用了帶有“非金屬材質攏焰罩”的節能型低氮燃燒器;熟料冷卻機是在原有步進式結構的基礎上,新增加了“強急冷結構”。
這臺篦冷機不同于其他相同結構步進式篦冷機的最大的特點是:該篦冷機的所有外形尺寸和傳動系統均一樣,制造廠家只提供按照原設計制造的框架結構、傳動系統和殼體。在出廠之前,就將原來的固定床更換成由淄博科邦提供的“縱向控制流固定床”。活動篦床的篦板全部采用了具有專利技術的“不塞料強冷篦板”,并按照“交叉氣流冷卻篦床”的結構進行配置。如此一來,這臺篦冷機就成為升級板的第四代步進式篦冷機了,其設計生產能力達到了49t/m2.d。由于篦板結構和通風槽結構的特殊性,篦板的通風阻力小。并且在最初的投料過程中,不需要鋪設鵝卵石。因此風機的工況壓力更低。系統配套的冷卻風量是1.6m3/kgcl。配套的電機功率是5.7kw/cl。所有消耗均比目前的第四代篦冷機更低。

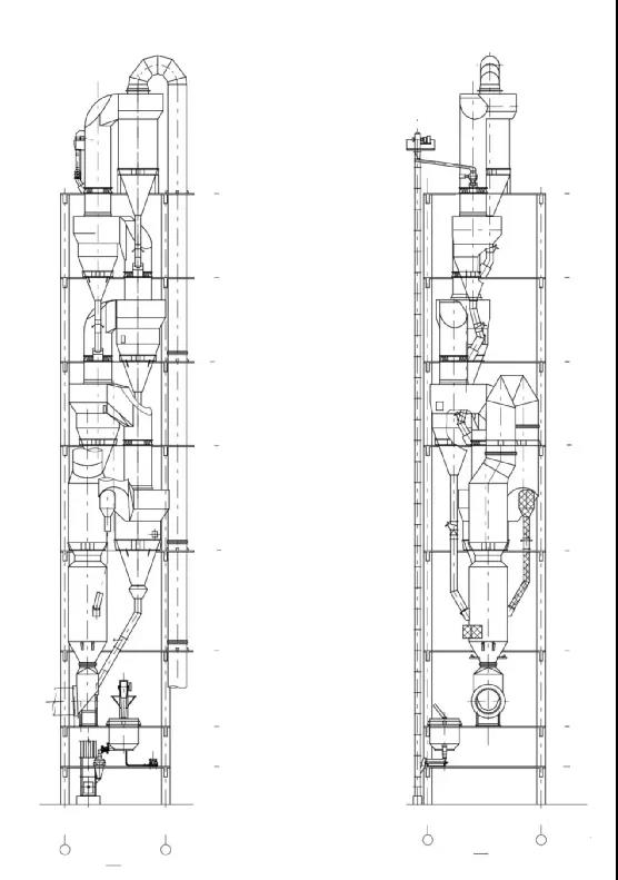
窯尾預熱器設計圖
在這臺窯尾預熱器中,各級旋風筒的下料管均采用“微動型鎖風閥”;連接管道中采用“低阻力撞擊擴散式”撒料裝置。預熱器中,除了窯尾煙室外,所有下料管均沒有設置空氣炮。
這條生產線是我們國家之外,首條采用中國水泥行業研發的并被國家工信部推薦的具有5項先進工藝結構特征的“水泥熟料節能降氮燒成系統”的生產線。其熱耗指標≦98kgce/tcl;NOx排放濃度≦200mg/m3。系統運行中,C1出口阻力≦3800pa。在世界水泥行業同等規模的生產線中是先進技術指標。
目前該生產線已經完成了回轉窯、篦冷機等部分主機設備訂貨。回轉窯已經開始安裝,窯尾預熱器和分解爐也正在現場制作中。由于該燒成系統中采用近20項具有我國自主知識產權的技術。因此在投產運行后,也將采用中國水泥行業原創的“精準平衡操作技術”進行燒成操作。屆時將成為國外第一條三次風管閥門全部打開運行的熟料生產線。在沒有采用SNCR后期處理技術的情況下,系統NOx排放濃度≦200mg/m3。這也是國際上的先進指標。這條生產線的燒成系統,是應建設方要求,由淄博科邦采用新技術設計而成。燒成系統的一些關鍵設備,也是應建設方的要求,由淄博科邦提供。
據郭紅軍介紹,節能降氮燒成技術是由“分解爐再循環”“分級燃燒分解爐”“帶攏煙罩的低氮燃燒器”“縱向控制流固定床”“精準平衡操作技術”5項專利核心應用技術,及“微動型鎖風閥”“變流場分解爐燃燒器”“低損耗三次風管”“交叉氣流冷卻篦床”4項輔助技術組成。它針對的是熟料燒成系統的4個主要工藝環節及操作技術,而不是單純的一項窯尾預熱預分解技術。可在不對系統進行傷筋動骨改造的情況下,使系統的綜合技術性能和指標實現脫胎換骨的升級換代。
該項技術是淄博科邦歷經23年燒成系統優化改造創新歷史,通過近百條水泥熟料生產線優化升級的實踐,一步步完善定型的,是集目前國際各種燒成創新技術之大成并進行結構優化和參數匹配后實現的,是適合當前國家環保和節能技術進步要求的一項系統技術。
未來隨著現有技術的優化升級、不斷攻克技術難關,新技術的研究開拓,水泥企業可根據自身特點,掌握優質、高效、經濟的脫硝技術,必然能實現整個行業的氮氧化物超低排放的目標。淄博科邦原創的“水泥熟料節能降氮燒成技術”將成為水泥工廠實現超低排放和減少二氧化碳排放的關鍵技術。
關于更詳細的水泥熟料節能降氮燒成技術,請咨詢:
郭經理:18911463905
郭高工:18853312888


